一(yi)、管廊布置(zhi)的一(yi)般要求(qiu)
①. 管(guan)(guan)廊(lang)應處于易與(yu)各類主要(yao)設(she)(she)備聯系的位置上。要(yao)考(kao)慮能使(shi)多(duo)數(shu)管(guan)(guan)線布置合理,少繞行,以減少管(guan)(guan)線長(chang)度。典型的位置是在兩排設(she)(she)備的中間(jian)或一排設(she)(she)備的旁側。
②. 布置管(guan)廊(lang)要(yao)綜合考慮(lv)道路、消防的需(xu)要(yao),以及地下管(guan)道與(yu)電(dian)纜布置和臨近(jin)建、構筑物等情況,并避開大、中型設備的檢修場地。
③. 管廊上部可以布(bu)置空冷(leng)器、小(xiao)型設(she)備、操(cao)作閥組平臺、儀表和(he)電氣電纜槽等,下(xia)部可以布(bu)置泵等設(she)備。
④. 管(guan)廊上設有的閥門需要操作或檢修時,應設置(zhi)人行走(zou)道或局(ju)部操作平(ping)臺。
二、管廊軸向(xiang)柱距的設(she)計
①. 管(guan)廊軸向(xiang)柱距由敷設在其上(shang)的(de)管(guan)道因(yin)垂(chui)直載荷所產生的(de)彎(wan)曲(qu)應力和撓度決(jue)定的(de)。
②. 根據管(guan)(guan)段不應(ying)在輕(qing)微外界擾力作用(yong)下(xia)發生(sheng)明(ming)顯振(zhen)動(dong)的(de)要求(qiu),規定裝置內管(guan)(guan)道(dao)的(de)固有(you)振(zhen)動(dong)頻率宜不低于(yu)4次/s,裝置外管(guan)(guan)段的(de)自由振(zhen)動(dong)頻率不低于(yu)2.55次/s,由此規定得出兩(liang)支架間管(guan)(guan)道(dao)允許撓度f,裝置內為(wei)15mm,裝置外為(wei)38mm。
③. 管(guan)(guan)廊軸(zhou)向(xiang)柱(zhu)距通常為6~9m,如中、小直(zhi)徑管(guan)(guan)道較多時,可(ke)在(zai)支柱(zhu)之間設(she)置副(fu)梁以滿足管(guan)(guan)道跨距,見圖(tu)3.5。
④. 管廊支柱(zhu)的(de)間距,宜與設備框架支柱(zhu)的(de)間距取(qu)得一(yi)致,以(yi)便管道通過(guo)。

三、管廊(lang)橫斷(duan)面寬度的設計
①. 管廊(lang)的(de)(de)(de)寬(kuan)度主(zhu)要由(you)管道的(de)(de)(de)數(shu)量(liang)(liang)和管徑的(de)(de)(de)大小確定。并(bing)考(kao)慮(lv)一定的(de)(de)(de)預留(liu)寬(kuan)度,新設計的(de)(de)(de)管廊(lang)一般留(liu)有(you)擴建(jian)預留(liu)量(liang)(liang)[全廠(chang)性管廊(lang)或管墩上(包括穿(chuan)越(yue)涵洞)應(ying)留(liu)有(you)10%~30%的(de)(de)(de)裕(yu)量(liang)(liang),裝(zhuang)置主(zhu)管廊(lang)宜留(liu)有(you)10%~20%的(de)(de)(de)裕(yu)量(liang)(liang)]。同時(shi)要考(kao)慮(lv)管廊(lang)下設備(bei)和通道以及管廊(lang)上空冷(leng)設備(bei)等(deng)結構的(de)(de)(de)影(ying)響。如果要求敷設儀(yi)表(biao)引線槽架和電力電纜時(shi),還(huan)應(ying)考(kao)慮(lv)它們(men)所需的(de)(de)(de)寬(kuan)度。
②. 管(guan)(guan)廊(lang)上布置空冷器(qi)(qi)時,管(guan)(guan)廊(lang)橫斷面支柱跨距最(zui)好與(yu)空冷器(qi)(qi)的(de)間距尺寸相同,以(yi)使(shi)管(guan)(guan)廊(lang)立柱與(yu)空冷器(qi)(qi)支柱中心(xin)線對齊(qi)。
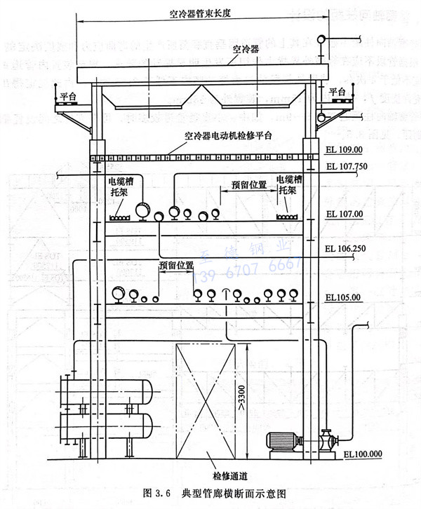
③. 管(guan)廊下(xia)布(bu)(bu)置泵(beng)時(shi),應(ying)考(kao)(kao)慮泵(beng)的(de)布(bu)(bu)置及其所(suo)需操作(zuo)和(he)檢修通道的(de)寬度,如果泵(beng)的(de)驅動機用電(dian)纜(lan)地下(xia)敷設時(shi),還應(ying)考(kao)(kao)慮電(dian)纜(lan)溝所(suo)需寬度。此外,還要考(kao)(kao)慮泵(beng)用冷卻水管(guan)道和(he)排水管(guan)道的(de)干管(guan)所(suo)需寬度。不過,電(dian)纜(lan)溝和(he)排水管(guan)道可以布(bu)(bu)置在通道的(de)下(xia)面,見圖3.6。
④. 由(you)于整個管廊的(de)(de)管道布置密度(du)并不相同(tong),通常在首(shou)尾(wei)段(duan)的(de)(de)管道數(shu)量較少。因此,在必(bi)要時可以減少首(shou)尾(wei)段(duan)的(de)(de)寬度(du)或(huo)層數(shu)。

四、管(guan)廊層高的設計
①. 接近地面第(di)一層管廊(lang)的(de)最小凈高的(de)設計
a. 在道(dao)路上空(kong)橫(heng)穿(chuan)時,按中國(guo)國(guo)內消防車(che)、運輸(shu)車(che)等(deng)一般(ban)高(gao)度(du)標(biao)準,SH規(gui)范的管廊(lang)高(gao)度(du)布置(zhi)標(biao)準要求如(ru)下。
·裝置內管廊距地(di)面凈(jing)空高度(du)(du):行車道(dao)、消防道(dao)和檢修(xiu)通(tong)(tong)道(dao)最小(xiao)凈(jing)高4.5m,泵區檢修(xiu)通(tong)(tong)道(dao)最小(xiao)凈(jing)高3m,操作通(tong)(tong)道(dao)最小(xiao)凈(jing)高2.2m(此高度(du)(du)是飲用了歐(ou)美(mei)國家人的(de)高度(du)(du)加安(an)全帽的(de)高度(du)(du)算(suan)出(chu)來的(de),日本操作通(tong)(tong)道(dao)通(tong)(tong)常為2.0m)。
·裝置外跨(kua)越(yue)廠區的全廠管廊(lang)據(ju)地(di)面(mian)凈空(kong)高度:跨(kua)越(yue)鐵路最小凈高5.5m,跨(kua)越(yue)廠內道路最小凈高5m。
以上(shang)僅是(shi)一般情況下(xia)管(guan)廊(lang)的(de)(de)高(gao)(gao)度(du)(du)要(yao)求(qiu)(qiu),管(guan)廊(lang)的(de)(de)設(she)(she)計高(gao)(gao)度(du)(du)還要(yao)結合項(xiang)目實際情況考慮全(quan)廠(chang)的(de)(de)大型設(she)(she)備的(de)(de)運(yun)輸(shu)(shu)需要(yao)的(de)(de)高(gao)(gao)度(du)(du),再最終確定管(guan)廊(lang)的(de)(de)布置(zhi)高(gao)(gao)度(du)(du)。例如,某新建工(gong)廠(chang),根據大件運(yun)輸(shu)(shu)的(de)(de)要(yao)求(qiu)(qiu),跨(kua)越全(quan)廠(chang)主干道的(de)(de)管(guan)廊(lang),距離地面的(de)(de)最小凈空高(gao)(gao)度(du)(du)為10m。
國(guo)外(wai)某工(gong)程項(xiang)目,需根據所在國(guo)家的規范要求(qiu)設計(ji)管(guan)廊(lang)高度(du)。例如,蘇(su)聯(俄羅斯)的消(xiao)防(fang)車(che)一般較高,俄羅斯全(quan)廠管(guan)廊(lang)距離路面最小(xiao)凈高為5.5m,比中國(guo)高0.5m。
b. 當管廊(lang)有桁架時要(yao)按桁架底(di)高計算。
c. 為有效地利用(yong)管(guan)廊空間,多(duo)在管(guan)廊下(xia)布置泵。考慮到泵的操作和(he)維(wei)護,宜有4.0m凈空高度。
②. 管(guan)廊(lang)(lang)(lang)上(shang)管(guan)道與分區設備相接時,一般應比管(guan)廊(lang)(lang)(lang)的底層(ceng)管(guan)道標高(gao)低(di)或高(gao)600~1000mm。管(guan)廊(lang)(lang)(lang)下布置管(guan)殼(ke)式換熱設備時,根(gen)據設備實際高(gao)度需(xu)要(yao)增加管(guan)廊(lang)(lang)(lang)下的凈空(kong)。
③. 管(guan)(guan)廊(lang)外設備(bei)的(de)(de)管(guan)(guan)道(dao)進入管(guan)(guan)廊(lang)所必(bi)(bi)需(xu)的(de)(de)高(gao)度。若為大(da)型裝置(zhi),其設備(bei)和管(guan)(guan)徑(jing)較大(da),為防止管(guan)(guan)道(dao)出現不必(bi)(bi)要的(de)(de)袋形,管(guan)(guan)廊(lang)最下一(yi)層橫梁(liang)底標高(gao)應低(di)于設備(bei)管(guan)(guan)口500~750mm。
④. 若管(guan)(guan)廊附近(jin)有換(huan)熱框架,換(huan)熱設備的下部(bu)管(guan)(guan)道要(yao)從(cong)它的框架平臺(tai)接(jie)往(wang)管(guan)(guan)廊,此時(shi)至(zhi)少要(yao)保證管(guan)(guan)廊的下層橫梁低于換(huan)熱框架第一層平臺(tai)。
⑤. 當(dang)管(guan)廊改變(bian)方向或兩(liang)管(guan)廊成直(zhi)角相(xiang)交時(shi),管(guan)廊宜錯(cuo)層布置,錯(cuo)層的高差宜為(wei)750~1000mm。當(dang)高差為(wei)750mm時(shi),DN250以下的管(guan)子用兩(liang)個(ge)直(zhi)角彎頭(tou)和(he)短管(guan)相(xiang)接(jie);大(da)于DN250的管(guan)子用一(yi)個(ge)45°彎頭(tou)、一(yi)個(ge)90°彎頭(tou)相(xiang)接(jie)。對于大(da)型裝置也(ye)可采用1000mm以上的高差。
⑥. 在確定管廊(lang)高度(du)時(shi),要(yao)考(kao)慮到(dao)管廊(lang)橫梁和(he)縱(zong)梁的結構(gou)斷面(mian)和(he)形(xing)式(shi),務(wu)必使梁底或桁(heng)架底的高度(du)滿足上(shang)述(shu)確定管廊(lang)高度(du)的要(yao)求(qiu)。對于雙層(ceng)管廊(lang),上(shang)下(xia)(xia)層(ceng)間(jian)距一般為(wei)1.5~2.0m,對于大型裝置上(shang)下(xia)(xia)層(ceng)間(jian)距可為(wei)2.5~3.0m,主(zhu)要(yao)取決于管廊(lang)上(shang)最大口徑的管道。
⑦. 裝置之間的(de)管廊高度取決于管廊地區(qu)的(de)具體情況(kuang),如(ru)沿工廠(chang)(chang)邊緣或罐(guan)區(qu),不(bu)會影響廠(chang)(chang)區(qu)交通和擴建的(de)地段(duan),從經濟性和檢修方便(bian)考(kao)慮(lv),可用管墩敷設,離(li)地面高300~500mm,即可滿足要求。
五、管墩的設計
圖3.7 常壓罐(guan)區的管墩設計
①. 管(guan)墩的間距按管(guan)徑最小的管(guan)道(dao)允許跨距進行設置(zhi)。
②. 管(guan)墩(dun)頂距地(di)面一般不宜(yi)小(xiao)于(yu)0.4m,見(jian)圖3.7。

六(liu)、混凝(ning)土管(guan)廊(lang)(管(guan)墩)梁頂(ding)預埋件
混凝土管(guan)廊(管(guan)墩)的(de)(de)梁(liang)頂應設通(tong)長預埋(mai)件(jian),預埋(mai)件(jian)的(de)(de)形式應符合國(guo)家標準SH/T 3055的(de)(de)要求。一般橫梁(liang)上應埋(mai)放一根圓鋼或鋼板,以減少管(guan)道與橫梁(liang)間(jian)的(de)(de)摩擦力。
例如,某項目在混凝(ning)(ning)土管(guan)廊(lang)(管(guan)墩)梁頂上設(she)置預(yu)埋件時,混凝(ning)(ning)土管(guan)廊(lang)(管(guan)墩)梁頂一(yi)般按(an)圖(tu)3.8(a)、(b)所示(shi)設(she)通長預(yu)埋件,當管(guan)廊(lang)需(xu)(xu)要(yao)設(she)導向架(jia)(jia)時,預(yu)埋件采(cai)(cai)用圖(tu)3.8(b)所示(shi)的形式(shi);當管(guan)廊(lang)需(xu)(xu)要(yao)設(she)固定架(jia)(jia)時,預(yu)埋件采(cai)(cai)用圖(tu)3.8(c)所示(shi)的形式(shi)。

七(qi)、管廊(lang)上儀表電(dian)氣電(dian)纜槽(cao)架及巡(xun)檢梯子(zi)平臺的布置(zhi)
①. 如果是中小型工程(cheng)項目,儀表電氣電纜槽架寬度(du)較(jiao)小,布置在管(guan)(guan)廊(lang)內(nei)或者掛在管(guan)(guan)廊(lang)外(wai)側面均可,并保持管(guan)(guan)道與槽架之間(jian)(jian)的間(jian)(jian)距。
②. 大(da)中型項目,儀表(biao)電氣電纜槽(cao)(cao)架(jia)(jia)較寬,可能需要占一層(ceng)(ceng)管廊(lang)的(de)空間。電纜槽(cao)(cao)架(jia)(jia)和儀表(biao)槽(cao)(cao)架(jia)(jia)宜(yi)布(bu)置(zhi)在上層(ceng)(ceng),電纜槽(cao)(cao)架(jia)(jia)層(ceng)(ceng)通(tong)常布(bu)置(zhi)在火炬管道(dao)層(ceng)(ceng)與公用(yong)工程管道(dao)層(ceng)(ceng)之間。槽(cao)(cao)架(jia)(jia)的(de)附近或正下方不應布(bu)置(zhi)有熱影響的(de)管道(dao)。
③. 對(dui)于(yu)全廠性管廊,有(you)的項目(mu)在(zai)電纜槽架層(ceng)設置有(you)全廠性巡(xun)檢通道(dao),并每(mei)隔一定(ding)距(ju)離設置一直爬梯到(dao)地面。
工程應用:管(guan)廊柱子基礎與地下(xia)管(guan)道、埋地電纜(lan)碰(peng)撞
某工程在施工管(guan)廊(lang)(lang)柱子(zi)結構(gou)基(ji)礎時才發(fa)現,柱子(zi)基(ji)礎與地(di)下(xia)管(guan)道、埋地(di)電(dian)纜(lan)等(deng)大(da)量碰撞,只能修(xiu)改(gai)(gai)(gai)管(guan)廊(lang)(lang)柱子(zi)位(wei)置(zhi)或者修(xiu)改(gai)(gai)(gai)地(di)下(xia)管(guan)道位(wei)置(zhi)或者修(xiu)改(gai)(gai)(gai)埋地(di)電(dian)纜(lan)的(de)(de)位(wei)置(zhi),造(zao)成多個專業(ye)的(de)(de)設計(ji)文(wen)件(jian)大(da)面積修(xiu)改(gai)(gai)(gai)。
建議在設計(ji)階(jie)段進行管廊(lang)柱子基礎與地(di)下管道、埋(mai)地(di)電纜碰撞檢(jian)查和各(ge)專業的會(hui)簽。
工程(cheng)應用:管(guan)廊(lang)層高(gao)偏高(gao)引起(qi)的(de)設計不合理
某石(shi)化裝置(zhi)施工完(wan)后,發(fa)現(xian)裝置(zhi)四周的全廠外(wai)管(guan)(guan)(guan)廊高達25m,從遠處觀(guan)望,外(wai)管(guan)(guan)(guan)廊全部遮(zhe)擋住了裝置(zhi)內塔(ta)及(ji)其(qi)他設(she)備,如圖(tu)3.9所示。究(jiu)其(qi)原因,發(fa)現(xian)在(zai)設(she)計(ji)(ji)時,管(guan)(guan)(guan)道間距沒有按(an)照最(zui)小管(guan)(guan)(guan)間距設(she)計(ji)(ji),共5層(ceng)管(guan)(guan)(guan)廊,大(da)口徑管(guan)(guan)(guan)道分(fen)布在(zai)各個(ge)管(guan)(guan)(guan)廊層(ceng)高,每層(ceng)的層(ceng)高至少(shao)設(she)計(ji)(ji)成(cheng)了3m,最(zui)大(da)層(ceng)高設(she)計(ji)(ji)成(cheng)了5m。筆(bi)者嘗試優化后,這條管(guan)(guan)(guan)廊總高度至少(shao)降低8m。

工程應用:管(guan)廊柱子(zi)偏粗的(de)不合理設計(ji)
在施工(gong)現場,某裝(zhuang)置(zhi)(zhi)管(guan)(guan)(guan)廊(lang)(A工(gong)程公(gong)司設(she)計)與(yu)鄰近裝(zhuang)置(zhi)(zhi)管(guan)(guan)(guan)廊(lang)(B工(gong)程公(gong)司設(she)計)直通連接時(shi),發現管(guan)(guan)(guan)廊(lang)上的(de)管(guan)(guan)(guan)子(zi)、電纜槽架(jia)是一樣的(de),管(guan)(guan)(guan)廊(lang)層高也(ye)一樣,但(dan)是,A工(gong)程公(gong)司負(fu)責(ze)設(she)計的(de)管(guan)(guan)(guan)廊(lang)柱子(zi)尺寸為800mm×800mm,而B工(gong)程公(gong)司設(she)計的(de)管(guan)(guan)(guan)廊(lang)柱子(zi)尺寸僅有(you)400mm×400mm,差距非常(chang)大。
經(jing)核對設計文件,發現A工(gong)程公司設計的載荷數(shu)據比正常偏(pian)大了很多(duo),引起(qi)了管(guan)廊柱子偏(pian)粗的不合理設計。

