某裝置(zhi)內主管廊
某(mou)裝(zhuang)置(zhi)內主(zhu)(zhu)管廊(lang)側面(mian)(mian)圖(tu),管廊(lang)主(zhu)(zhu)體(ti)總(zong)長203m,寬13m,頂層(ceng)標高22m,其中管廊(lang)上設(she)備框架最高處距地標高38m。主(zhu)(zhu)管廊(lang)大約布(bu)置(zhi)了兩千多(duo)條管線(xian)。圖(tu)5-8加粗部分為主(zhu)(zhu)管廊(lang)在整個裝(zhuang)置(zhi)區內的位置(zhi),圖(tu)5-9是一小段主(zhu)(zhu)管廊(lang)結構側面(mian)(mian)結構圖(tu)。
一些大、中型(xing)工程項(xiang)目中,通常先根據工藝系統圖(tu)(tu)和(he)(he)裝(zhuang)置規劃圖(tu)(tu),對(dui)需(xu)要占用管(guan)(guan)廊(lang)的管(guan)(guan)線、儀表(biao)電氣槽架和(he)(he)設備(bei)進(jin)行初步的布(bu)置研(yan)究(jiu),綜合考(kao)慮管(guan)(guan)廊(lang)的層數、層高和(he)(he)預留(liu)裕量等因素(su),最(zui)終確定最(zui)小管(guan)(guan)廊(lang)寬(kuan)度。管(guan)(guan)廊(lang)橫(heng)斷面是(shi)兩個立柱(zhu)的,寬(kuan)度一般不(bu)超(chao)過10m,如果超(chao)過10m,管(guan)(guan)廊(lang)橫(heng)斷面宜(yi)采用三個立柱(zhu),如圖(tu)(tu)5-8中涂(tu)黑(hei)加(jia)粗(cu)部(bu)分的立管(guan)(guan)廊(lang)。如果管(guan)(guan)廊(lang)上(shang)布(bu)置空冷(leng)(leng)器(qi),管(guan)(guan)廊(lang)寬(kuan)度需(xu)考(kao)慮空冷(leng)(leng)器(qi)管(guan)(guan)束長度,具體要求(qiu)見(jian)本書空冷(leng)(leng)器(qi)布(bu)置設計章節詳述。

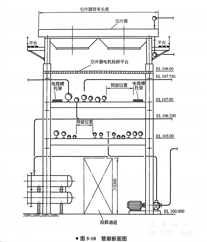
典型管廊斷面圖(tu)(圖(tu)5-10)

大型(xing)綜合(he)管廊(lang)典型(xing)布置設計(ji)
石化裝置大型綜(zong)合管(guan)廊不(bu)同于裝置小管(guan)廊,設計(ji)技術難度及工作量常常是整個工程裝置最大的之一。
有的裝置(zhi)內(nei)大型綜合(he)管(guan)廊(lang)(lang)(lang)橫(heng)斷面有一百多根(gen)管(guan)線,平均(jun)口徑10"左(zuo)右,管(guan)廊(lang)(lang)(lang)下面布置(zhi)了(le)泵(beng)、臥(wo)罐、閥(fa)(fa)組、減溫減壓(ya)器(qi)、換熱器(qi)、分析小(xiao)屋等設備實(shi)施(shi),管(guan)廊(lang)(lang)(lang)側面布置(zhi)了(le)安全閥(fa)(fa)、消(xiao)音器(qi)等設備,管(guan)廊(lang)(lang)(lang)頂部(bu)布置(zhi)了(le)空冷(leng)器(qi)、立式(shi)塔、安全閥(fa)(fa)、控制(zhi)閥(fa)(fa)等設備。這種裝置(zhi)內(nei)大型綜合(he)管(guan)廊(lang)(lang)(lang)有的設計(ji)到約15m寬、40m高。
有(you)(you)的煉化(hua)(hua)一(yi)體化(hua)(hua)裝置外大(da)型綜(zong)合(he)管(guan)廊(lang)橫斷面(mian)有(you)(you)200~300根管(guan)線,有(you)(you)的管(guan)廊(lang)寬度達(da)50m左右、高度達(da)40m左右。
大型(xing)綜合(he)管廊的(de)跨(kua)距有(you)(you)的(de)用(yong)(yong)9m,有(you)(you)的(de)用(yong)(yong)12m或18m。有(you)(you)的(de)全用(yong)(yong)混(hun)凝(ning)(ning)土的(de),有(you)(you)的(de)全用(yong)(yong)鋼結(jie)構(gou)的(de),有(you)(you)的(de)第(di)1層用(yong)(yong)混(hun)凝(ning)(ning)土,以上層用(yong)(yong)的(de)是鋼結(jie)構(gou)。不同(tong)(tong)的(de)跨(kua)距、不同(tong)(tong)的(de)結(jie)構(gou)形(xing)式對管道(dao)設(she)(she)計(ji)程(cheng)序和整個(ge)工程(cheng)項目的(de)造價、進度影響很(hen)大,具體見《工業管道(dao)配管設(she)(she)計(ji)與(yu)工程(cheng)應用(yong)(yong)》一書的(de)詳述。
管(guan)廊頂部設備布置設計(ji)
管(guan)廊(lang)頂(ding)部(bu)常布置(zhi)空冷器(qi)、換(huan)熱器(qi)、立式設備(bei)、安全閥(fa)等設備(bei)。圖(tu)5-11是管(guan)廊(lang)頂(ding)部(bu)臥式設備(bei)的布置(zhi)示意圖(tu)。有的工程把約15m高的干(gan)燥塔(ta)布置(zhi)在了管(guan)廊(lang)頂(ding)部(bu)。


