以某(mou)煉(lian)油項目裝置(zhi)作為(wei)一個實例,列出了在已有(you)工(gong)廠中開展新裝置(zhi)平面布置(zhi)設計的步驟。通過例子展示了某(mou)些推薦的做法和布置(zhi)設計的原則。
一、裝置設備(bei)布(bu)置設計要求(qiu)的(de)一般資料(liao)
當開始(shi)做裝置設(she)(she)備(bei)平面布置圖(tu)時,需要從(cong)工程設(she)(she)計項目(mu)組及工藝(yi)、設(she)(she)備(bei)、儀表、電氣、總圖(tu)等專業得到下列資料。
①. 新裝置區域附近(jin)現場資料(liao)(在某些(xie)設計單(dan)位,這些(xie)條(tiao)件由總圖專(zhuan)業(ye)供(gong)給管道(dao)專(zhuan)業(ye))。
a. 工程(cheng)設計資料(包括新裝(zhuang)置區域現場平面圖,地上或地下設施,水、電、汽等公用(yong)工程(cheng)條件,選(xuan)用(yong)的(de)防火規范、安全距離(li)、噪聲(sheng)控制的(de)標(biao)準等)。
b. 常年最小(xiao)頻(pin)率風(feng)向。
c. 裝置及進(jin)出管線(xian)建議的位置。
d. 電纜進出(chu)口位置。
e. 新裝置區附近的道(dao)路、鐵路等(deng)交通條件及其詳圖。
f. 裝置的(de)基準點(dian)位置。
g. 裝置的指北向。
h. 檢修用吊(diao)車的能力和尺寸。
i. 消防車通道。
②. 從其他專業得到的資料。
a. 工(gong)藝流程(cheng)圖或管道-儀表(biao)流程(cheng)圖。
b. 設備(bei)(bei)表及設備(bei)(bei)尺寸(cun)。例(li)如:大型(xing)儲罐的(de)(de)(de)直(zhi)徑、高度(du)或容量;加熱爐的(de)(de)(de)外(wai)形(xing)(xing)尺寸(cun)、形(xing)(xing)式(shi)(shi),煙(yan)囪(cong)是獨立的(de)(de)(de)還是安裝在加熱爐頂部(bu),煙(yan)囪(cong)尺寸(cun);壓縮機的(de)(de)(de)形(xing)(xing)式(shi)(shi)、外(wai)形(xing)(xing)尺寸(cun),其密封(feng)油(you)、潤滑油(you)系統的(de)(de)(de)布(bu)置,輔助(zhu)設備(bei)(bei)的(de)(de)(de)布(bu)置;泵(beng)的(de)(de)(de)形(xing)(xing)式(shi)(shi)、外(wai)形(xing)(xing)尺寸(cun),驅動機的(de)(de)(de)形(xing)(xing)式(shi)(shi)和要求(qiu);各種非(fei)定型(xing)設備(bei)(bei)的(de)(de)(de)規格,包括(kuo)塔器、換熱器、容器等(deng)。
c. 設備安裝(zhuang)和(he)檢修(xiu)要求。例(li)如:塔的最小安裝(zhuang)高(gao)度(從地面至塔底封頭切線處);有重(zhong)力(li)流或固體卸料的立式或臥式容(rong)器的安裝(zhuang)標高(gao)要求(立式的指底部封頭切線處至地面的距(ju)離,臥式的指儲槽(cao)底部至地面的距(ju)離);換熱(re)器管束(shu)抽芯所需(xu)空間;壓縮機、泵或其(qi)他回(hui)轉設備拆卸和(he)更(geng)換零(ling)部件的要求。
③. 空冷器(qi)(qi)形式和(he)外形尺寸需要和(he)工藝專業協商,因(yin)為空冷器(qi)(qi)通常安裝在管廊的(de)上(shang)方,管廊的(de)尺寸要和(he)空冷器(qi)(qi)的(de)規(gui)格相適(shi)應。
通常在管(guan)廊的(de)下方布置(zhi)泵,需(xu)要泵的(de)型號、規(gui)格(ge)、外形尺(chi)寸(cun)及泵的(de)吸入口(kou)和排出(chu)口(kou)管(guan)線連(lian)接尺(chi)寸(cun),如能(neng)提供樣本(ben)更好(hao)。
二(er)、對(dui)工藝流程圖的(de)研(yan)究(jiu)
作平面布置(zhi)圖時,工藝(yi)流(liu)程(cheng)圖已準備好(圖5-97)。

請工藝設(she)計人(ren)員介紹裝置(zhi)的工藝流(liu)程,并(bing)研(yan)究出直接影響(xiang)設(she)備(bei)布置(zhi)的若(ruo)干結論,例如下面(mian)所列內容。

①. 設(she)備布置要(yao)順流(liu)程。原油加料泵P-101要(yao)緊(jin)貼裝置西邊界(jie)管線(xian)進(jin)出(chu)口“A”。因(yin)為原油管線(xian)從(cong)“A”處(chu)進(jin)入裝置(圖5-98)。
②. 泵應布(bu)置在相應的設備附近(jin),以免(mian)泵吸(xi)入管線壓降太大。
③. 要(yao)滿足大型設備布(bu)置(zhi)上的(de)要(yao)求。如(ru)加熱爐F-101,要(yao)保證安全距離。另外,燃(ran)料(liao)管(guan)線用(yong)分配(pei)(pei)臺分配(pei)(pei),進口(kou)接管(guan)多,故(gu)爐子周圍(wei)要(yao)有(you)足夠的(de)空間。
④. 關鍵(jian)管(guan)(guan)線(xian)(xian)(xian)的(de)柔性要(yao)求(qiu),在(zai)布置階段請應力分析人員協(xie)助,例如:加(jia)熱(re)爐的(de)轉油管(guan)(guan)線(xian)(xian)(xian)是高溫合金(jin)管(guan)(guan)線(xian)(xian)(xian),要(yao)盡可(ke)(ke)能(neng)(neng)短,且沒有袋(dai)形;T-101塔底管(guan)(guan)線(xian)(xian)(xian)是高溫的(de),要(yao)考慮管(guan)(guan)線(xian)(xian)(xian)的(de)柔性以(yi)及備用泵的(de)熱(re)的(de)和冷(leng)的(de)工況;進出汽(qi)提塔T-102和T-103的(de)管(guan)(guan)線(xian)(xian)(xian)盡可(ke)(ke)能(neng)(neng)短;汽(qi)提塔至火炬系統(tong)的(de)泄壓管(guan)(guan)線(xian)(xian)(xian)應盡可(ke)(ke)能(neng)(neng)短。
⑤. 設備布(bu)置要(yao)考慮配管(guan)要(yao)求,例如(ru):從(cong)T-101至E-115的(de)架空管(guan)線(xian)(xian)(xian)應避免(mian)有(you)袋(dai)形(xing),在滿足管(guan)線(xian)(xian)(xian)柔性和(he)塔膨脹的(de)前(qian)提下,管(guan)線(xian)(xian)(xian)走向應簡單些(xie);從(cong)E-115至V-101的(de)冷凝液管(guan)線(xian)(xian)(xian)應避免(mian)有(you)袋(dai)形(xing);從(cong)V-101至壓(ya)縮機C-101的(de)氣體管(guan)線(xian)(xian)(xian)盡可能短,避免(mian)有(you)袋(dai)形(xing)。
三(san)、平面布置圖的編制
在完成工藝流程圖的研究后,進一步檢查新收到的各專業的資(zi)料是否(fou)有其他的要求。開始(shi)平面布置圖的設計(ji)。
①. 如(ru)工程沒有特殊的(de)要求,裝(zhuang)置(zhi)的(de)操作通道、檢(jian)修(xiu)通道及平(ping)臺的(de)設(she)置(zhi)等(deng)均(jun)按(an)設(she)計規范確(que)定,下列各項在設(she)計中應予遵循。
a. 裝置檢修(xiu)時,需汽車(吊車)通過的主要(yao)檢修(xiu)通道上方最(zui)小凈(jing)空4.5m。
b. 裝置(zhi)四周環形道(dao)路上方最小凈(jing)空(kong)5.0m,鐵(tie)軌上方最小凈(jing)空(kong)5.5m(SH 3012-2000)。
c. 泵的(de)(de)操作(zuo)溫(wen)(wen)度340℃或340℃以上(shang)時,不能布(bu)置在管(guan)廊(lang)下,應布(bu)置在距管(guan)廊(lang)外側3m以外。泵的(de)(de)操作(zuo)溫(wen)(wen)度在340℃以下時,可布(bu)置在管(guan)廊(lang)下,必(bi)須考慮泵和驅動機的(de)(de)檢修,泵上(shang)方最(zui)小(xiao)凈空3m。
d. 通常,空(kong)冷器(qi)布置在(zai)管廊上。
e. 儲存烴類設備的支架及輸送烴類管道的管廊支柱應進行防火(huo)保護的處理。
②. 要考慮運(yun)輸(shu)、安裝設(she)備(bei)的(de)位置。道路或(huo)通道要有足夠的(de)空間,以(yi)滿(man)足大型設(she)備(bei)的(de)運(yun)輸(shu)和安裝。
③. 進行初步的(de)(de)(de)設備(bei)布(bu)置。如圖5-98所示,用方塊的(de)(de)(de)形式繪出管(guan)廊(lang)、加熱爐、蒸餾塔、框架、控制室等(deng)的(de)(de)(de)位置。這張(zhang)布(bu)置圖討論通過,即可開始設計(ji)正式的(de)(de)(de)平面布(bu)置圖。
④. 繪制平面布置圖的步驟。
a. 在裝置設備(bei)布置區域(yu)內確定管廊的布置。
b. 加熱(re)爐的(de)布置。
c. 控制室(shi)的布置。
d. 主要設備的布置,包括分餾塔、空冷器(qi)、大型容器(qi)、壓縮機(ji)、泵等。
全(quan)部設備(bei)布置完(wan)成后(hou),經(jing)校驗,并適當(dang)調整,使(shi)用(yong)計(ji)算機繪出(chu)正式平(ping)面布置圖。
四、裝置管廊的布置
裝置(zhi)管廊的(de)位置(zhi)必須優先考慮(lv),因(yin)為它會影響設備的(de)布置(zhi)。
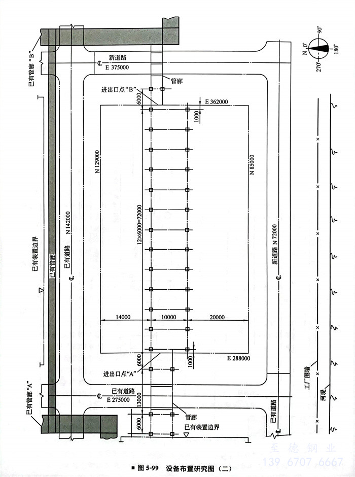
圖5-99表示了新裝置管廊的位(wei)置與已有管廊的關(guan)系,下(xia)面敘述如何布置管廊。

①. 首先應與土(tu)建協商確定結構材(cai)料,是(shi)(shi)使(shi)用(yong)鋼筋混凝(ning)土(tu)的還是(shi)(shi)鋼結構的。鋼筋混凝(ning)土(tu)的較為經(jing)濟。
②. 管(guan)(guan)廊的柱(zhu)距6m,可(ke)滿足DN80和DN80以上的管(guan)(guan)線,不需要中(zhong)間支承。管(guan)(guan)廊下兩個柱(zhu)距之間可(ke)布置(zhi)兩臺中(zhong)型的泵。
③. 管廊(lang)(lang)的(de)寬(kuan)度,首先應(ying)明確管廊(lang)(lang)上(shang)是否安(an)裝(zhuang)(zhuang)空(kong)(kong)冷(leng)器(qi)(qi)(qi)。若安(an)裝(zhuang)(zhuang)空(kong)(kong)冷(leng)器(qi)(qi)(qi),管廊(lang)(lang)的(de)寬(kuan)度由空(kong)(kong)冷(leng)器(qi)(qi)(qi)的(de)管長決(jue)定(ding)。若管廊(lang)(lang)上(shang)沒有(you)空(kong)(kong)冷(leng)器(qi)(qi)(qi),則作(zuo)完管線(xian)走向草圖后,根(gen)據(ju)管子排列寬(kuan)度,再預留20%的(de)裕量(liang)[全廠性管廊(lang)(lang)或管墩上(shang)(包括穿越涵洞)應(ying)留有(you)10%~30%的(de)裕量(liang),裝(zhuang)(zhuang)置主管廊(lang)(lang)宜留有(you)10%~20%的(de)裕量(liang)],并考慮管廊(lang)(lang)下設備檢修的(de)最小(xiao)通道(dao),確定(ding)管廊(lang)(lang)的(de)寬(kuan)度。
④. 根據已(yi)有(you)管(guan)(guan)廊的位置(zhi),新(xin)裝(zhuang)置(zhi)管(guan)(guan)廊東、西(xi)向布置(zhi)較為(wei)合理。管(guan)(guan)廊的柱子(zi)邊緣(yuan)距道路不應小于1m。
⑤. 加(jia)熱(re)爐應放在(zai)常年最小頻率風(feng)向的下(xia)風(feng)側,位于管廊南側(圖5-100)。爐子所(suo)占面積較大,總寬度為10m,其四周要設置平臺,從裝置南邊界線往北20m設管廊第一(yi)排柱子。

五、主要(yao)設備(bei)的布置
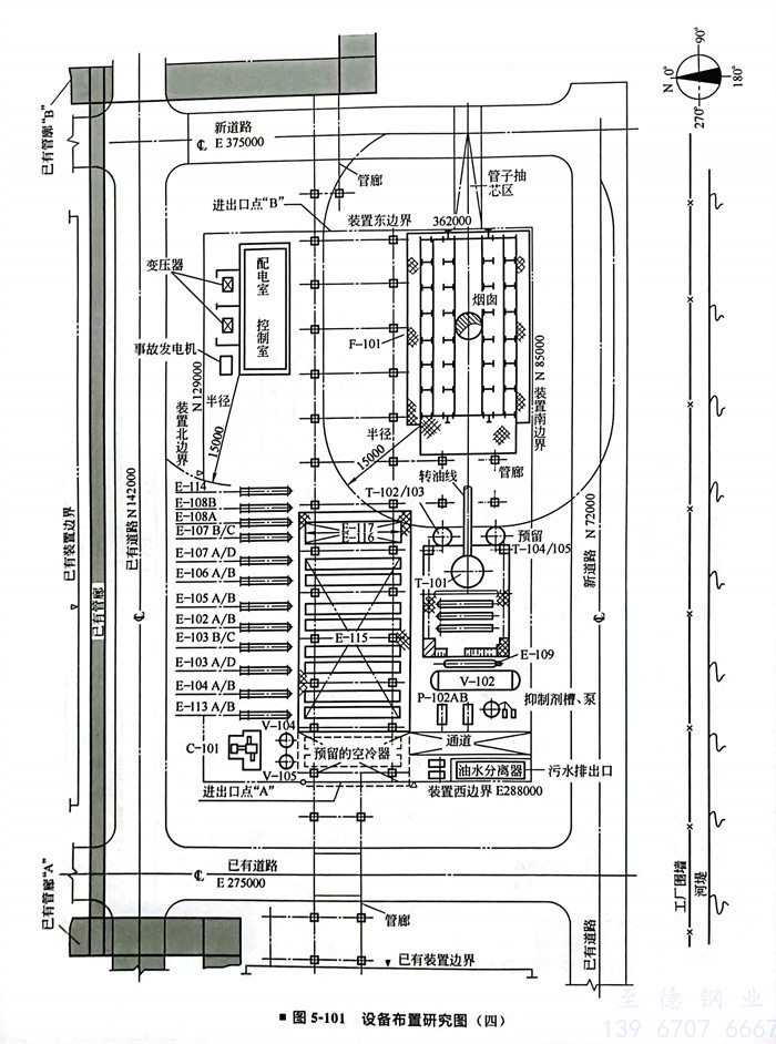
1. 原油加熱爐F-101的布置(圖5-101)

原油(you)加(jia)熱(re)爐(lu)(lu)是長23m寬10m的箱式爐(lu)(lu),煙(yan)囪和加(jia)熱(re)爐(lu)(lu)組裝在一起。
加熱爐布(bu)置(zhi)的要點如下:
①. 位于常年最小頻(pin)率風向的下(xia)風側。
②. 加熱爐(lu)周圍保持15m的安全距(ju)離(li)。
③. 對(dui)流段管束抽芯所需(xu)要的空間(jian),在布置圖上要表示出(chu),抽芯區域內不得有(you)任何障礙物。
④. 為便于施(shi)工安(an)裝,加熱爐應位于主(zhu)要(yao)道路旁。
2. 控(kong)制(zhi)室的布(bu)置(圖5-101)
確定控制(zhi)室的位置時應考慮安全(quan)性,控制(zhi)室應離(li)逸出(chu)可燃性氣體的設備有(you)15m的距離(li)。在有(you)的設計單位,控制(zhi)室的布置是由總圖專(zhuan)業完(wan)成的。
3. 分(fen)餾塔(ta)T-101及有關設備(bei)的布(bu)置(圖5-101)
從加熱爐F-101到(dao)塔T-101的(de)(de)轉油線(xian)是(shi)一根關鍵(jian)管線(xian),盡(jin)可能短些,因(yin)為管口是(shi)在爐子的(de)(de)西面(mian),所以T-101在F-101的(de)(de)西面(mian)是(shi)合理的(de)(de)。
汽提塔T-102 和T-103 緊(jin)靠T-101。
如(ru)圖5-101所示,應(ying)按工藝流程和重力流要求布置設(she)備(bei)。從T-101來的(de)塔(ta)頂管線經換熱器E-101至空(kong)冷(leng)器E-115,再經冷(leng)凝器E-110到儲槽V-101。
在(zai)正式(shi)畫平面布置圖(tu)以前,先畫一張草圖(tu)。研究所有設備安裝和檢修是否可行。
4. 空冷(leng)器(qi)的布置
大型(xing)空冷器E-115放在(zai)中間,便于從E-101來的管線敷(fu)設。
管線的走(zou)向要和(he)流程(cheng)一致。因為煤油和(he)輕組分油管線在裝置東邊界進出口點“B”連接,故空(kong)冷器(qi)E-116和(he)E-117放在E-115的東邊。
便于(yu)擴建時預留(liu)空冷器的(de)安裝(zhuang),預留(liu)的(de)空冷器放(fang)在(zai)E-115的(de)西邊。
5. 脫鹽水V-102及有關設備的(de)布(bu)置(圖5-101)
V-102是一個大型設備,直徑(jing)3m,切線(xian)(xian)至(zhi)切線(xian)(xian)長度為11m,加上球形封頭總長為14m。因為管廊至(zhi)南(nan)邊界線(xian)(xian)的距離(li)是20m,可放置(zhi)脫鹽(yan)器,故把V-102放在(zai)管廊的南(nan)邊。
換(huan)熱器(qi)(qi)E-102、E-103和E-104布(bu)置在管(guan)(guan)廊的(de)北面(mian),因為原油進料管(guan)(guan)線從西面(mian)進入后(hou),經換(huan)熱器(qi)(qi)后(hou)進入脫鹽器(qi)(qi)。
加(jia)熱爐(lu)加(jia)料泵P-102旁布置抑制劑(ji)配(pei)制設備。脫鹽器(qi)人口要加(jia)入(ru)抑制劑(ji),配(pei)制設備放在這里,袋子拆(chai)卸方便。
6. 原油預熱器群的布置(圖5-100和圖5-101)
換(huan)熱器E-105、E-106、E-107放在(zai)管廊(lang)的(de)北面換(huan)熱器區(qu)域內,和(he)E-102、E-103、E-104排(pai)成一行。
這些(xie)換熱(re)(re)器(qi)的(de)(de)布(bu)置,不能妨礙換熱(re)(re)器(qi)周圍的(de)(de)檢修通道(dao),并要提(ti)供足夠(gou)的(de)(de)管束抽芯空間。在管廊(lang)和換熱(re)(re)器(qi)之間要有足夠(gou)的(de)(de)距離,以便(bian)于接近(jin)換熱(re)(re)器(qi)封頭。
完成換熱器E-108、E-113和E-114的(de)定位(wei):蒸汽發(fa)生器E-108布(bu)置在E-107的(de)東邊,它靠近泵P-107及相對地接近F-101。
要符合流(liu)程圖的(de)流(liu)向,水冷卻器(qi)E-113緊靠E-104布置,使得E-101來的(de)配(pei)管距離最短。冷卻器(qi)E-114位于E-108的(de)東邊,在控(kong)制室最小(xiao)安全距離之外。
7. 壓縮機C-101及附屬設備的布(bu)置(圖(tu)5-100和圖(tu)5-101)
壓縮機(ji)為往(wang)復式、兩段(duan)、電機(ji)驅動的雙缸(gang)對(dui)置式壓縮機(ji),帶一、二段(duan)冷(leng)卻器,一臺,占(zhan)地(di)面積約5㎡。
甲方沒有提出建造壓縮(suo)機廠(chang)房的要(yao)求時,則壓縮(suo)機露天(tian)安(an)裝。它和吸入罐V-104及V-105一起布置在裝置的最西端。
因為(wei)氣體和二段(duan)冷凝液(ye)管線在“A”處進出(chu)裝置,壓縮機C-101布置在裝置邊(bian)界線附近是很理想的。
8. 泵的布置
圖(tu)5-100示出了(le)管(guan)廊下(xia)泵的布置。
當管(guan)廊柱間距為6m時(shi),可(ke)安裝兩臺中型泵,并有(you)供電纜(lan)的足(zu)夠空間。泵的排出口位于管(guan)廊柱中心線外側600mm(見圖5-102)。
原油加料泵P-101位于(yu)裝置西邊界(jie)管(guan)線進出口附近。
泵(beng)P-103、P-105和P-108靠近有關(guan)設備T-101布置,分餾塔T-101及泵(beng)的吸入管(guan)線要有一定的柔性(xing)。
泵(beng)P-104、P-106布置在框架(jia)下(xia)。
9. 油水分離器的布置(zhi)(圖5-100)
油水(shui)分(fen)離器是(shi)把烴(jing)類和雨(yu)水(shui)、消防(fang)水(shui)分(fen)離,然(ran)后用(yong)泵將烴(jing)送至廢油罐(在裝置以外)處理,分(fen)離器排出(chu)的污水(shui)送至全廠污水(shui)處理系統(tong)。
場地(di)西南(nan)角的尺寸和位置布置油(you)水分離器合適,理由(you)如下:裝置污(wu)水管要(yao)接至工廠已有污(wu)水總管,正好在油(you)水分離器的南(nan)面(mian);廢(fei)油(you)管線理想的引出位置在“A”點,離加熱爐F-101的距離最遠(yuan)。
六、管線走向研(yan)究圖
平面(mian)布(bu)置(zhi)(zhi)圖(tu)(tu)供給各(ge)有關專業前,根(gen)據(ju)管(guan)道-儀(yi)表(biao)流程圖(tu)(tu)畫管(guan)線走向圖(tu)(tu)以(yi)校驗平面(mian)布(bu)置(zhi)(zhi)圖(tu)(tu)。
①. 管線走向圖的用途有(you):決定管廊的寬度和層數;校核設備布(bu)置(zhi)和物料流向。
②. 管線走向圖(tu)(tu)由裝置設備布(bu)置設計者負責繪(hui)制。管線走向圖(tu)(tu)由一(yi)根根管線組成,管線走向盡可能使距離縮(suo)短,減少不必要的繞行。通(tong)常,管廊的走向改變(bian)的,要改變(bian)標高,圖(tu)(tu)上不必表(biao)示管子的上升和下(xia)降。
管(guan)廊(lang)上的(de)(de)調(diao)節閥組、孔板(ban)和(he)主要(yao)管(guan)線中的(de)(de)特殊配件應表示出位置,以便(bian)校(xiao)核(he)所需要(yao)的(de)(de)空間。
當管(guan)線走向圖完成后,應(ying)校核管(guan)廊(lang)的寬(kuan)度,為今后的擴建(jian),每(mei)一層管(guan)廊(lang)預留一定(ding)的余量。如果管(guan)廊(lang)的寬(kuan)度超過10m,通(tong)常(chang)改為雙層管(guan)廊(lang)。
③. 管線走(zou)向圖應做到(dao)如(ru)下各點。
a. 管廊的寬度一(yi)般不超過10m。
b. 只有安裝空冷器組的一段管廊需要雙(shuang)層(ceng)的。
c. 為加熱爐F-101轉油(you)線的支承,需(xu)設一(yi)單層管廊。
d. 在管廊上敷設電(dian)氣和儀表電(dian)纜(lan),兩電(dian)纜(lan)槽之間要有(you)1m的(de)凈距(ju)。
e. 確(que)定管廊(lang)橫梁的標高(gao)。
f. 在管線(xian)進出(chu)口(kou)“A”處若為(wei)單(dan)層管廊時,需(xu)增加管廊的寬(kuan)度(du),在管線(xian)進出(chu)口(kou)“B”處為(wei)單(dan)層管廊時,也需(xu)增加管廊的寬(kuan)度(du)(去火炬干管除外)。
g. 確(que)定(ding)從(cong)控制室來的電纜架的位置。
h. 確定冷卻水、循環水在裝置進出口的位置。
i. 完成裝置(zhi)進出口(kou)管線表,包括管線尺寸和流(liu)動介質(zhi)。
七(qi)、修改并完成建議(yi)的平面布置圖
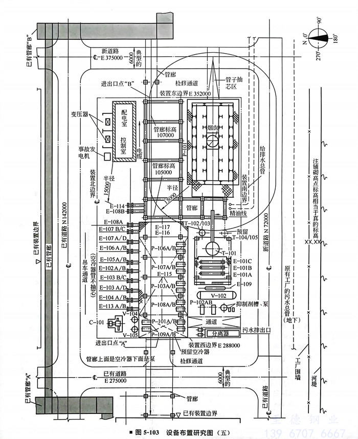
將建議的(de)平(ping)面布(bu)置圖(tu)修改了(le)(le),把管廊(lang)北(bei)面的(de)換熱器群南移,使換熱器殼體(ti)的(de)一(yi)部分和封頭位于管廊(lang)下,因為附近沒有泵。圖(tu)5-103中(zhong)還表示了(le)(le)空(kong)冷器管束抽芯所需的(de)吊(diao)車通(tong)道。

為了保(bao)證裝(zhuang)(zhuang)置檢(jian)修(xiu)時吊(diao)車(che)(che)能吊(diao)裝(zhuang)(zhuang)各種(zhong)負(fu)荷,要校核吊(diao)車(che)(che)的荷載能否達到要求。
圖5-102是(shi)裝置的(de)剖視圖,這(zhe)張(zhang)圖需要與甲(jia)方(fang)及施工單位結合(he),它進一步驗證了通道(dao)等檢修條件是(shi)否(fou)滿足要求。

圖5-104為用坐(zuo)標(biao)標(biao)注平(ping)面布置圖的(de)實例:建(jian)、構筑物的(de)尺寸要以坐(zuo)標(biao)標(biao)注,設備的(de)安(an)裝尺寸從有坐(zuo)標(biao)的(de)柱號(hao)標(biao)注相對尺寸。


