浙江至德鋼業有限公司技術人員參加評(ping)審某設計時,發現某固定直爬(pa)梯沒(mei)有設置護籠,不符合規(gui)范要求。
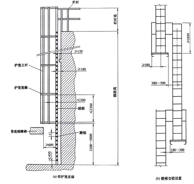
按照SH/T 3011《石油化工工藝裝置(zhi)布(bu)置(zhi)設計規范》要(yao)求:高(gao)(gao)(gao)度(du)超過(guo)3m的直梯應設置(zhi)安全護(hu)籠(long),護(hu)籠(long)下(xia)端距(ju)地(di)面或平臺不應小于2.1m,護(hu)籠(long)上端高(gao)(gao)(gao)出平臺面,應與(yu)欄桿高(gao)(gao)(gao)度(du)一(yi)致。固定式鋼直梯示意圖(tu)見圖(tu)14.2。


GB 4053.1《固定(ding)式鋼梯(ti)及平臺安全要求 第1部(bu)分:鋼直梯(ti)》的要求如下。
①. 單段(duan)梯(ti)高宜(yi)不大(da)于(yu)10m,攀(pan)登高度大(da)于(yu)10m時宜(yi)采(cai)用多(duo)段(duan)梯(ti),梯(ti)段(duan)水平交錯布(bu)置,并設梯(ti)間平臺,平臺的(de)垂(chui)直(zhi)間距宜(yi)為6m。單段(duan)梯(ti)及多(duo)段(duan)梯(ti)的(de)梯(ti)高均應(ying)不大(da)于(yu)15m。
②. 梯段(duan)高(gao)度大于(yu)3m時(shi)宜設(she)(she)置(zhi)安全護(hu)籠。單梯段(duan)高(gao)度大于(yu)7m時(shi),應設(she)(she)置(zhi)安全護(hu)籠。當攀登高(gao)度小于(yu)7m,但梯子頂部在(zai)地面、地板或屋頂之上高(gao)度大于(yu)7m時(shi),也(ye)應設(she)(she)置(zhi)安全護(hu)籠。
③. 當護(hu)籠(long)用(yong)于多段(duan)梯時,每個梯段(duan)應與相(xiang)鄰的(de)梯段(duan)水(shui)平(ping)交錯并有(you)(you)足夠的(de)間距,設有(you)(you)適當空間的(de)安(an)全進、出引(yin)導平(ping)臺,以保護(hu)使用(yong)者(zhe)的(de)安(an)全。

