室內采(cai)暖(nuan)管道施工圖主要(yao)表示一棟建筑物的供暖(nuan)系(xi)統,主要(yao)包括平面圖、系(xi)統圖、詳圖。
1. 平面(mian)圖的主要內容
室內(nei)采(cai)暖(nuan)平面(mian)(mian)圖主要表示管道(dao)、附件及(ji)散熱器在(zai)建(jian)筑物平面(mian)(mian)上的位(wei)置(zhi)及(ji)相互關系。
a. 查明建筑物內散(san)熱器的平面位置、種類、片數及散(san)熱器的安裝(zhuang)形式、方式。
各種散(san)熱器的(de)規格(ge)及數量應按以下(xia)規定標注(zhu):
①. 柱型散熱器(qi)只(zhi)標注數量;
②. 圓翼型散熱器應標注根(gen)數和排數;
③. 光(guang)排管散(san)熱器應標注管徑、長度(du)、排數(shu)及型(xing)號(A型(xing)和B型(xing))。
b. 查明水(shui)平(ping)(ping)干(gan)管(guan)的布置(zhi)方式、干(gan)管(guan)上的閥門(men)、固定支架、補償(chang)器(qi)等的平(ping)(ping)面位置(zhi)、型號、干(gan)管(guan)管(guan)徑。
c. 通過(guo)立管編(bian)號(hao)查明系統(tong)立管的數量和(he)平面(mian)布(bu)置(zhi)(zhi)位置(zhi)(zhi)。
d. 在熱(re)水采暖系統平面(mian)圖中應(ying)查明膨(peng)脹水箱、自動排氣閥(fa)或集氣罐的位置、型號(hao)、配(pei)管管徑及布置。對車(che)間蒸(zheng)汽采暖管道、應(ying)查明疏水器的平面(mian)位置、規格尺寸、疏水裝置組成(cheng)等。
e. 查明熱(re)媒(mei)(mei)入(ru)口(kou)及入(ru)口(kou)地溝情況。當熱(re)媒(mei)(mei)入(ru)口(kou)無節(jie)(jie)點詳圖(tu)時,平面圖(tu)上一般將入(ru)口(kou)組成的(de)設備如減壓(ya)閥、疏(shu)水器(qi)(qi)、分水器(qi)(qi)、分汽缸(gang)、除污器(qi)(qi)、控制(zhi)閥、溫度(du)計、壓(ya)力表(biao)、熱(re)量(liang)表(biao)等(deng)表(biao)示清楚,并標注(zhu)管徑(jing)、熱(re)媒(mei)(mei)來源、流(liu)向、熱(re)工參數等(deng)。如果熱(re)媒(mei)(mei)人口(kou)主要配件(jian)與國家(jia)標準圖(tu)相同(tong)時,平面圖(tu)則注(zhu)明規格、標準圖(tu)號(hao)(hao),可按給(gei)定標準圖(tu)號(hao)(hao)查閱(yue)。當熱(re)媒(mei)(mei)人口(kou)有節(jie)(jie)點詳圖(tu)時,平面圖(tu)則注(zhu)明節(jie)(jie)點圖(tu)的(de)編(bian)號(hao)(hao)以備查閱(yue)。
2. 系統(tong)圖的(de)主要內容(rong)
采(cai)暖系統圖主要表示從熱煤(mei)人(ren)口至(zhi)出口的采(cai)暖管道,散(san)熱設備及附件的空間(jian)位置和(he)互(hu)相(xiang)之間(jian)的關系。
a. 查明管道系統中干管與(yu)立管之間(jian)及支管與(yu)散熱器之間(jian)的(de)連接方式、閥門(men)安裝位置及數量,各管道管徑、坡度(du)坡向、水平干管的(de)標(biao)高、立管編號、管道的(de)連接方式。
b. 查明散熱器(qi)的規格型(xing)號、類型(xing)、安裝形式(shi)(shi)及(ji)方式(shi)(shi)與片(pian)數(中片(pian)和(he)足(zu)片(pian))、標高(gao)、散熱器(qi)進場(chang)形式(shi)(shi)(現(xian)場(chang)組對(dui)或成品)。
c. 查明各種閥件、附件及設備在管道(dao)系統中(zhong)的位置,凡是注(zhu)有規格(ge)型號者,應與(yu)平面圖和材料明細表進行校(xiao)對。
d. 查明熱煤(mei)人口裝置中(zhong)各種閥件、附件、儀表之間相對關系及(ji)熱媒的來源、流向、坡向、標高、管徑(jing)等。如(ru)有節點詳(xiang)圖時,應(ying)查明詳(xiang)圖編號及(ji)內容(rong)。
3. 詳圖的主要內容
采暖施工(gong)圖(tu)的(de)詳圖(tu)包括(kuo)標準(zhun)圖(tu)和(he)(he)節點圖(tu)兩(liang)種。標準(zhun)圖(tu)是詳圖(tu)的(de)重(zhong)要組成部(bu)分。供水管(guan)、回水管(guan)與散熱(re)器之(zhi)間的(de)連接(jie)形(xing)式、詳細尺寸和(he)(he)安裝要求(qiu),均可用標準(zhun)圖(tu)表(biao)示。因此(ci),對施工(gong)技術人員來說,掌握常用的(de)標準(zhun)圖(tu),熟知必要的(de)安裝尺寸和(he)(he)管(guan)道配件、施工(gong)做法,對于組織施工(gong)活動,控制施工(gong)質量是十分必要的(de)。
采暖管道施工中(zhong)常用標(biao)準圖(tu)的內容包括(kuo):
a. 膨(peng)脹水箱(xiang)、冷凝(ning)水箱(xiang)的制作、配(pei)件與安裝。
b. 分汽罐、分水(shui)(shui)器、集(ji)水(shui)(shui)器的構造、制作與安裝。
c. 疏水器、減壓(ya)閥、減壓(ya)板的組成形式和安裝方法(fa)。
d. 散熱器的(de)連接(jie)與安裝要求。
e. 采暖系統立管(guan)、支管(guan)、干管(guan)的連(lian)接形式。
f. 管道支架(jia)、吊(diao)架(jia)的制作與安裝。
g. 集汽罐的制(zhi)作與安裝。
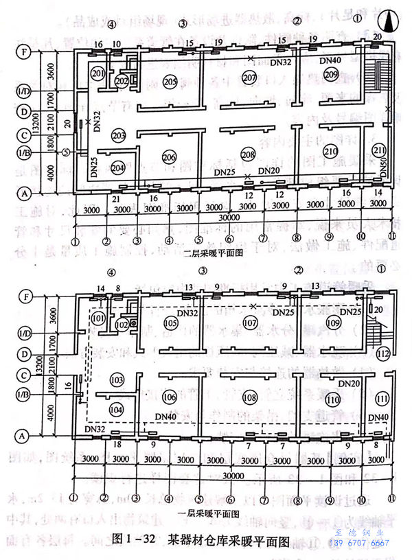
【實例】某器材倉庫底層和二層采暖平(ping)面(mian)圖(tu)(tu)、系統圖(tu)(tu),如圖(tu)(tu)1-32和圖(tu)(tu)1-33所示。試對這套圖(tu)(tu)樣進(jin)行識讀。

通過識讀平(ping)面圖(tu)可以了解(jie)建筑物總(zong)(zong)長30m,總(zong)(zong)寬為13.2m,水平(ping)軸(zhou)線為①~?,豎向軸(zhou)線為A~F.建筑物出人(ren)口(kou)有兩處,其中一(yi)處位(wei)于⑩、?軸(zhou)線之(zhi)間,另一(yi)處在(zai)C、①軸(zhou)線之(zhi)間。每(mei)層各有面積(ji)不等的約11個房(fang)間。
在(zai)(zai)建筑物(wu)的兩個(ge)入(ru)口處,散熱器(qi)布置(zhi)在(zai)(zai)門口墻壁(bi)上(shang),其余的散熱器(qi)全部布置(zhi)在(zai)(zai)各房間的窗臺(tai)下。散熱器(qi)的片(pian)數(shu)均注(zhu)在(zai)(zai)散熱器(qi)圖例上(shang)。
通(tong)過查閱系統圖得知,本例(li)(li)為(wei)(wei)(wei)雙管(guan)(guan)(guan)(guan)(guan)上分式(shi)熱水(shui)(shui)采(cai)暖系統,熱媒干(gan)管(guan)(guan)(guan)(guan)(guan)管(guan)(guan)(guan)(guan)(guan)徑為(wei)(wei)(wei)DN50,標高(gao)為(wei)(wei)(wei)-1.40m,由南向(xiang)(xiang)北穿(chuan)過A軸(zhou)線(xian)外(wai)墻進(jin)入111號房(fang)間(jian),在(zai)(zai)A~?軸(zhou)線(xian)交角處登高(gao),在(zai)(zai)總(zong)立(li)(li)管(guan)(guan)(guan)(guan)(guan)上安裝一控制閥門(men)。總(zong)立(li)(li)管(guan)(guan)(guan)(guan)(guan)登高(gao)至二層6.00m,在(zai)(zai)天棚下沿(yan)(yan)墻敷(fu)設。干(gan)管(guan)(guan)(guan)(guan)(guan)管(guan)(guan)(guan)(guan)(guan)徑依次為(wei)(wei)(wei)DN50、DN40、DN32、DN25、DN20.本例(li)(li)共有8根立(li)(li)管(guan)(guan)(guan)(guan)(guan),管(guan)(guan)(guan)(guan)(guan)徑均(jun)為(wei)(wei)(wei)DN20.立(li)(li)管(guan)(guan)(guan)(guan)(guan)為(wei)(wei)(wei)雙管(guan)(guan)(guan)(guan)(guan)式(shi),采(cai)用(yong)三(san)通(tong)和四(si)通(tong)與散熱器連接。回水(shui)(shui)干(gan)管(guan)(guan)(guan)(guan)(guan)的起始端(duan)在(zai)(zai)103房(fang)間(jian),標高(gao)為(wei)(wei)(wei)0.200m,沿(yan)(yan)墻在(zai)(zai)底層地面拖地敷(fu)設,管(guan)(guan)(guan)(guan)(guan)道(dao)坡度與回水(shui)(shui)流(liu)動方向(xiang)(xiang)為(wei)(wei)(wei)同向(xiang)(xiang)。回水(shui)(shui)干(gan)管(guan)(guan)(guan)(guan)(guan)在(zai)(zai)103房(fang)間(jian)過門(men)處,返(fan)(fan)低(di)至地溝繞過大門(men)。干(gan)管(guan)(guan)(guan)(guan)(guan)管(guan)(guan)(guan)(guan)(guan)徑依次為(wei)(wei)(wei)DN20、DN25、DN32、DN40、DN50.干(gan)管(guan)(guan)(guan)(guan)(guan)在(zai)(zai)111房(fang)間(jian)返(fan)(fan)低(di)-1.400m 流(liu)至室外(wai)管(guan)(guan)(guan)(guan)(guan)道(dao)。
在供水、回水立管(guan)上(shang)均設(she)有閥(fa)門(men),但①立管(guan)上(shang)未裝,而(er)在散熱器(qi)的(de)支管(guan)上(shang)安裝閥(fa)門(men)。
由(you)圖(tu)紙得知,干管上設有固(gu)定支(zhi)架(jia),供水(shui)干管上設有4個,回水(shui)干管上設有3個。管道活動支(zhi)架(jia)通常(chang)在施工圖(tu)上是不顯示的,施工人員應按有關規范要求,在現(xian)場(chang)選定和(he)設置。
在(zai)識讀平面圖和系統圖的(de)同時,需要查閱部分標準圖,本(ben)例中集氣罐的(de)制作(zuo)與(yu)安裝(zhuang),如圖1-34所(suo)(suo)示(shi),散熱器與(yu)立(li)支管的(de)連(lian)接,如圖1-35所(suo)(suo)示(shi)。


